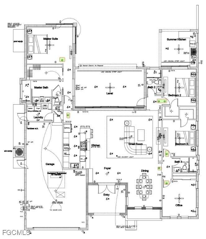
Description
Pre-Construction - You can still choose what your dream home should look like: colors, cabinets, flooring, countertops, appliances, and much more. We are building this spacious and modern home for you in a prime location. Located in a cul-de-sac in one of Cape Coral's most desirable neighborhoods. As you drive down this palm-tree-lined dead end, you will be surrounded by luxury homes overlooking the South Spreader Waterway. A quiet and sophisticated setting. Yet only 300 yards from the new and popular Sands Park for sports, activities, and play. This finely designed modern home boasts many typical quality features. Recognize the difference from standard buildings. The 4-bedroom house with 3 bathrooms and 3 garages offers generous space for family or friends. The pool area with a separate, covered outdoor kitchen transforms the outdoor area into a vacation spot for relaxation and enjoyment. The new building is scheduled for completion in December 2026.
-
4BEDS
-
0.23ACRES
-
3BATHS
-
01/2 BATHS
-
2,471SQFT
-
$522$/SQFT
School Ratings & Info
Description
Pre-Construction - You can still choose what your dream home should look like: colors, cabinets, flooring, countertops, appliances, and much more. We are building this spacious and modern home for you in a prime location. Located in a cul-de-sac in one of Cape Coral's most desirable neighborhoods. As you drive down this palm-tree-lined dead end, you will be surrounded by luxury homes overlooking the South Spreader Waterway. A quiet and sophisticated setting. Yet only 300 yards from the new and popular Sands Park for sports, activities, and play. This finely designed modern home boasts many typical quality features. Recognize the difference from standard buildings. The 4-bedroom house with 3 bathrooms and 3 garages offers generous space for family or friends. The pool area with a separate, covered outdoor kitchen transforms the outdoor area into a vacation spot for relaxation and enjoyment. The new building is scheduled for completion in December 2026.
© 2025 Florida Gulf Coast Multiple Listing Service, Inc. All rights reserved. The data relating to real estate for sale or lease on this web site comes in part from FGCMLS. Data deemed reliable but not guaranteed.IDX information is provided exclusively for consumers' personal, non-commercial use and may not be used for any purpose other than to identify prospective properties consumers may be interested in purchasing. Information is deemed reliable but is not guaranteed accurate by the MLS or Lifestyle & Luxury Living. Data last updated 2025-11-13T00:25:07.833.
