Description
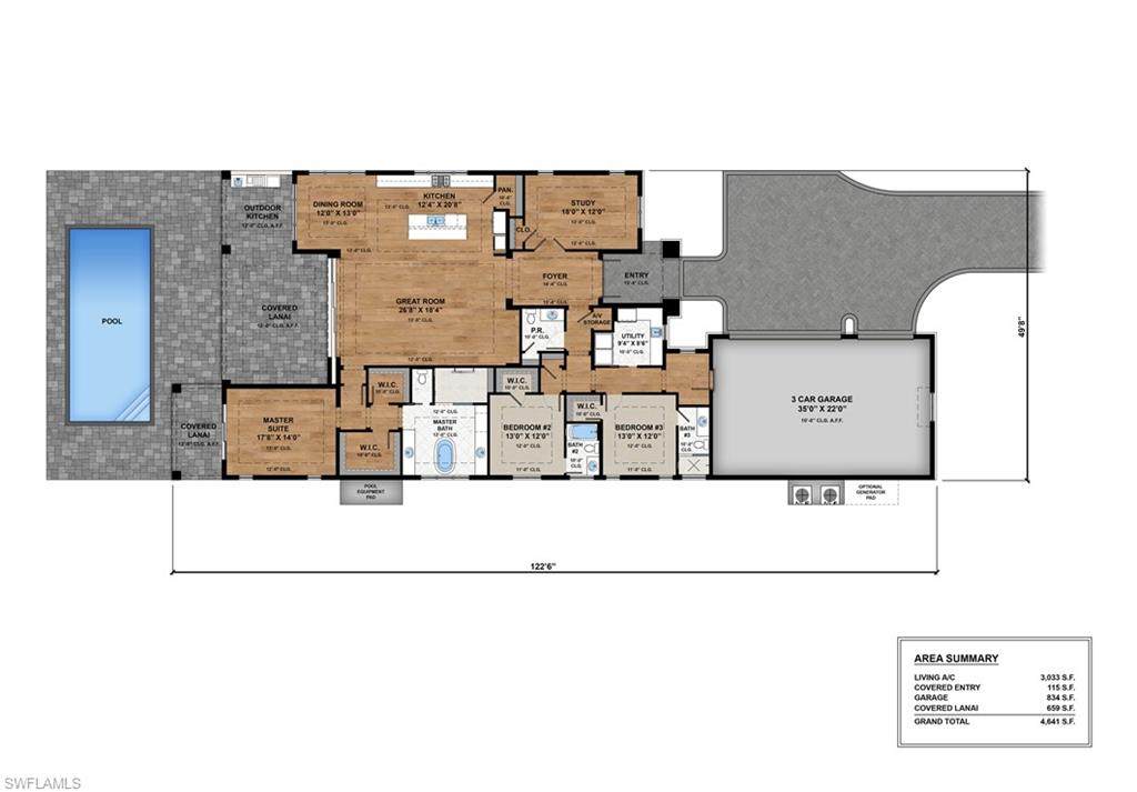
Permit Ready! Seagate Development Group presents the Avalon Custom Home in Palisades, one of Seagate's newest, gated communities in the heart of Naples. This custom home is a collaboration between Seagate Development Group and JMDG Architecture, and custom landscape & hardscape design by Outside Productions. The Avalon Custom Home offers over 3000sqft. of living area and over 4,500sqft total. The open-concept plan features 3 bedrooms, 3 full and 1 half bath, study, dining area, island kitchen, tray ceilings, outdoor living, swimming pool, and a 3-car garage with epoxy finished floors. Luxury features include double pane Andersen impact windows & doors, 10' tall pocket sliding glass door, Sub Zero/Wolf appliances, Kohler plumbing fixtures, custom cabinets, quartz countertops, frameless shower enclosures, free standing tub in master, custom closet systems, premium wood baseboards, premium window & door casing, solid 1" interior doors, Emtek interior door hardware, 4" recessed LED lighting throughout every room, Control4 home automation system, spray foam insulation, sound insulation in bathrooms and laundry, level 5 drywall, lush landscaping and more! Palisades is an enclave of 25 custom homes situated in a premier Naples location with abundant amenities, only minutes away from Mercato, Waterside Shops, 2 Ritz-Carltons, and other exceptional shopping, dining, and beachfront destinations. Seagate's portfolio of companies specialize in custom homes, renovations, interior design, estate management, and land development. Together, bringing exceptional concierge levels of service to everything we do. SALES CENTER OPEN DAILY. Photos in this listing contain virtual renderings.
-
3BEDS
-
0.22ACRES
-
3BATHS
-
11/2 BATHS
-
3,033SQFT
-
$1,110$/SQFT
School Ratings & Info
Description
Permit Ready! Seagate Development Group presents the Avalon Custom Home in Palisades, one of Seagate's newest, gated communities in the heart of Naples. This custom home is a collaboration between Seagate Development Group and JMDG Architecture, and custom landscape & hardscape design by Outside Productions. The Avalon Custom Home offers over 3000sqft. of living area and over 4,500sqft total. The open-concept plan features 3 bedrooms, 3 full and 1 half bath, study, dining area, island kitchen, tray ceilings, outdoor living, swimming pool, and a 3-car garage with epoxy finished floors. Luxury features include double pane Andersen impact windows & doors, 10' tall pocket sliding glass door, Sub Zero/Wolf appliances, Kohler plumbing fixtures, custom cabinets, quartz countertops, frameless shower enclosures, free standing tub in master, custom closet systems, premium wood baseboards, premium window & door casing, solid 1" interior doors, Emtek interior door hardware, 4" recessed LED lighting throughout every room, Control4 home automation system, spray foam insulation, sound insulation in bathrooms and laundry, level 5 drywall, lush landscaping and more! Palisades is an enclave of 25 custom homes situated in a premier Naples location with abundant amenities, only minutes away from Mercato, Waterside Shops, 2 Ritz-Carltons, and other exceptional shopping, dining, and beachfront destinations. Seagate's portfolio of companies specialize in custom homes, renovations, interior design, estate management, and land development. Together, bringing exceptional concierge levels of service to everything we do. SALES CENTER OPEN DAILY. Photos in this listing contain virtual renderings.
The data relating to real estate for sale on this limited electronic display come in part from the Broker Reciprocity Program (BR Program) of M.L.S. of Naples, Inc. Properties listed with brokerage firms other than Lifestyle & Luxury Living are marked with the BR Program Icon or the BR House Icon and detailed information about them includes the name of the Listing Brokers. The properties displayed may not be all the properties available through the BR Program. The accuracy of this information is not warranted or guaranteed. This information should be independently verified if any person intends to engage in a transaction in reliance upon it. Data last updated 2025-11-11T10:25:28.627. Some properties that appear for sale on this website may no longer be available. For the most current information, contact Lifestyle & Luxury Living, (239) 276-9996, bouncedemail@boomtownroi.com. Licensed in the State of Florida.
Listing courtesy of Seagate Realty, LLC: 239-738-7900.