Description
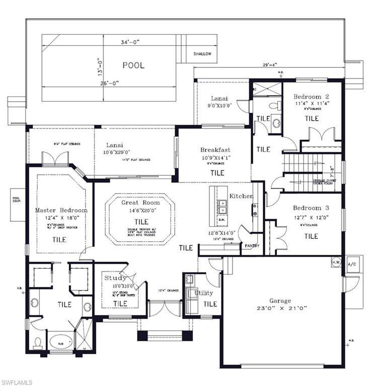
Exceptional Newly Built Southern Exposure Waterfront Residence on Marco Island! Discover the pinnacle of modern coastal luxury in this newly built 2024 waterfront estate, presented turnkey/furnished and offering 2,532 square feet of refined living space under air. Ideally positioned on converging waterways and a 100' wide lot, the home provides indirect Gulf access with a quick and effortless route through Factory Bay, perfect for the discerning boating enthusiast. A grand double-door entry welcomes you into an interior defined by soaring tray ceilings, expansive sightlines, and elegant 12” x 24” tile flooring throughout. Dramatic 8-foot pocket sliding glass doors dissolve the boundary between inside and out, inviting natural light and tranquil water views into the heart of the home. The chef-inspired kitchen is both striking and functional, featuring quartz countertops, a refined tile backsplash, custom exhaust hood, wall oven, recessed microwave and a counter-height breakfast bar ideal for casual entertaining. The air-conditioned walk-in pantry underscores the home’s attention to detail, while premium Kohler plumbing fixtures and Moen faucets elevate both the kitchen and baths. Designed with privacy in mind, the split-bedroom floor plan offers four spacious bedrooms, three full baths, and a private den or study. The luxurious owner’s suite is a serene retreat, highlighted by two air-conditioned walk-in closets and a spa-like en suite bath featuring a freestanding soaking tub, separate glass-enclosed shower with frameless doors, and contemporary finishes. Step outdoors to your private tropical sanctuary, where a heated resort-style pool highlighted by an immense lounging shelf and spill-over spa are framed by a brick paver deck and picture-window screen enclosure, creating an ideal setting for elegant entertaining or quiet relaxation. A dedicated pool bath enhances the seamless indoor-outdoor lifestyle. Additional premium features include a three-car garage, impact glass windows and doors, plantation shutters, brick paver driveway, high-efficiency 16 SEER air conditioning system, programmable digital thermostat, stylish light fixtures, modern ceiling fans, and a seawall replaced in 2004. Located just minutes from Marco Island’s pristine beaches, upscale dining, shopping, and cultural attractions, this exceptional waterfront residence offers a rare blend of contemporary sophistication, boating convenience, and timeless island elegance. Schedule your private viewing today!
-
4BEDS
-
0.25ACRES
-
3BATHS
-
01/2 BATHS
-
2,532SQFT
-
$1,026$/SQFT
School Information
Description
Exceptional Newly Built Southern Exposure Waterfront Residence on Marco Island! Discover the pinnacle of modern coastal luxury in this newly built 2024 waterfront estate, presented turnkey/furnished and offering 2,532 square feet of refined living space under air. Ideally positioned on converging waterways and a 100' wide lot, the home provides indirect Gulf access with a quick and effortless route through Factory Bay, perfect for the discerning boating enthusiast. A grand double-door entry welcomes you into an interior defined by soaring tray ceilings, expansive sightlines, and elegant 12” x 24” tile flooring throughout. Dramatic 8-foot pocket sliding glass doors dissolve the boundary between inside and out, inviting natural light and tranquil water views into the heart of the home. The chef-inspired kitchen is both striking and functional, featuring quartz countertops, a refined tile backsplash, custom exhaust hood, wall oven, recessed microwave and a counter-height breakfast bar ideal for casual entertaining. The air-conditioned walk-in pantry underscores the home’s attention to detail, while premium Kohler plumbing fixtures and Moen faucets elevate both the kitchen and baths. Designed with privacy in mind, the split-bedroom floor plan offers four spacious bedrooms, three full baths, and a private den or study. The luxurious owner’s suite is a serene retreat, highlighted by two air-conditioned walk-in closets and a spa-like en suite bath featuring a freestanding soaking tub, separate glass-enclosed shower with frameless doors, and contemporary finishes. Step outdoors to your private tropical sanctuary, where a heated resort-style pool highlighted by an immense lounging shelf and spill-over spa are framed by a brick paver deck and picture-window screen enclosure, creating an ideal setting for elegant entertaining or quiet relaxation. A dedicated pool bath enhances the seamless indoor-outdoor lifestyle. Additional premium features include a three-car garage, impact glass windows and doors, plantation shutters, brick paver driveway, high-efficiency 16 SEER air conditioning system, programmable digital thermostat, stylish light fixtures, modern ceiling fans, and a seawall replaced in 2004. Located just minutes from Marco Island’s pristine beaches, upscale dining, shopping, and cultural attractions, this exceptional waterfront residence offers a rare blend of contemporary sophistication, boating convenience, and timeless island elegance. Schedule your private viewing today!
Related Properties
The data relating to real estate for sale on this limited electronic display come in part from the Broker Reciprocity Program (BR Program) of M.L.S. of Naples, Inc. Properties listed with brokerage firms other than Lifestyle & Luxury Living are marked with the BR Program Icon or the BR House Icon and detailed information about them includes the name of the Listing Brokers. The properties displayed may not be all the properties available through the BR Program. The accuracy of this information is not warranted or guaranteed. This information should be independently verified if any person intends to engage in a transaction in reliance upon it. Data last updated 2026-02-17T19:25:44.717. Some properties that appear for sale on this website may no longer be available. For the most current information, contact Lifestyle & Luxury Living, (239) 276-9996, bouncedemail@boomtownroi.com. Licensed in the State of Florida.
Listing courtesy of Achieve Realty LLC: 239-642-0055.